Tychy, Urbanowice

Dom na sprzedaż

Opis nieruchomości

URBANOWICE, UL. OŚWIĘCIMSKA
BUDYNEK 1


 



Szukasz domu, który wykończysz dokładnie według własnej wizji?

Ten bliźniak w spokojnej, zielonej części Tychów to idealna propozycja dla osób, które chcą stworzyć przestrzeń dopasowaną do własnych potrzeb i stylu życia.

Dom o powierzchni całkowitej 141 m² (124,1 m² powierzchni użytkowej + garaż w bryle budynku 16,9m²) i sprzedawany jest obecnie w stanie surowym zamkniętym.

To doskonała okazja dla osób, które chcą zaplanować wykończenie domu według własnego projektu i nadać mu indywidualny charakter.

Cena dotyczy obecnego etapu inwestycji – stanu surowego zamkniętego.
Wraz z kolejnymi etapami prac budowlanych i postępem inwestycji cena nieruchomości będzie odpowiednio wzrastać.


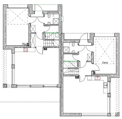
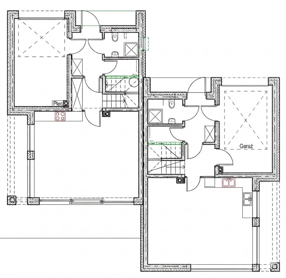
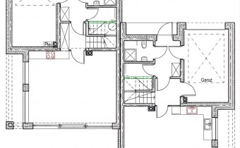
Strefa dzienna – parter

Parter został zaplanowany jako komfortowa przestrzeń wspólna dla domowników:

Salon z aneksem kuchennym – przestronny i dobrze doświetlony, idealny do stworzenia przytulnej strefy dziennej

Spiżarnia – dodatkowa przestrzeń do przechowywania produktów i sprzętów kuchennych

Toaleta dla gości

Wiatrołap – praktyczna strefa wejściowa

Garaż w bryle budynku – wygodny dostęp bezpośrednio z domu

Układ parteru daje wiele możliwości aranżacyjnych i pozwala stworzyć funkcjonalną przestrzeń do codziennego życia.


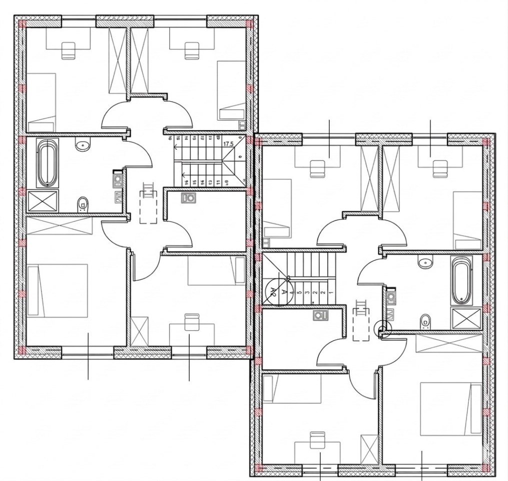
Piętro – część prywatna

Na piętrze zaplanowano komfortową strefę dla domowników:

Sypialnia główna

Trzy dodatkowe pokoje, które mogą pełnić funkcję pokoi dziecięcych, gabinetu lub pokoju gościnnego

Oddzielna garderoba

Łazienka

Duży, wysoki strych – przestrzeń do przechowywania lub możliwość adaptacji



Najważniejsze atuty nieruchomości

✔ spokojna, zielona okolica sprzyjająca odpoczynkowi
✔ własny ogród, który można zaaranżować według własnych potrzeb
✔ garaż w bryle budynku
✔ możliwość wykończenia domu według własnego projektu
✔ dobra komunikacja i szybki dojazd do centrum miasta
✔ inwestycja z potencjałem wzrostu wartości wraz z postępem prac



Rozkład pomieszczeń

Parter (63,9 m²):

  • Wiatrołap – 4,7 m²

  • Salon z aneksem kuchennym – 36,4 m²

  • Spiżarnia – 2,8 m²

  • Toaleta – 3,1 m²

  • Garaż – 16,9 m²
     

Piętro (77,1 m²):

  • Sypialnia główna – 15,2 m²

  • Pokój – 12,3 m²

  • Pokój – 12,3 m²

  • Pokój – 12,2 m²

  • Łazienka – 8,6 m²

  • Garderoba – 5,6 m²

  • Przedpokój – 10,9 m²



Dom w stanie surowym zamkniętym daje możliwość stworzenia wyjątkowego miejsca do życia, dopasowanego w 100% do Twojego stylu i potrzeb – w spokojnej części Tychów.

W ofercie posiadamy również inne domy z tej inwestycji – zapraszam do kontaktu w celu poznania szczegółów.

???? Zadzwoń i umów się na prezentację – zobacz potencjał tej nieruchomości na żywo i przekonaj się, czy to miejsce stanie się Twoim przyszłym domem.

Agent prowadzący :
Amanda Smołuch
t: +48 572 190 490
@: asmoluch@mojem.com.pl

Nota prawna

Opis oferty zawarty na stronie internetowej sporządzany jest na podstawie oględzin nieruchomości oraz informacji uzyskanych od właściciela, może podlegać aktualizacji i nie stanowi oferty określonej w art. 66 i następnych K.C.

Szczegóły oferty

Symbol oferty MMN-DS-7412
Powierzchnia 182,30 m²
Powierzchnia użytkowa 141,00 m²
Powierzchnia działki 303 m²
Liczba pokoi 5
Rodzaj domu bliźniak
Technologia budowlana beton, cegła, pustak
Liczba pięter w budynku 1
Garaż w budynku
Stan prawny Własność
Okna nowe PCV
Instalacje nowe
Balkon brak
Liczba tarasów 2
Ukształtowanie działki płaska
Kształt działki prostokat
Pokrycie dachu blachodachówka
Stan budynku do wykończenia
Ogrodzenie działki brak
Gaz jest
Woda ciepła z pieca CO
Dojazd droga utwardzona
Otoczenie działki niezabudowane
Ogrzewanie własne gazowe - kocioł 2-funkcyjny
Tarasy taras duży
Prąd jest
Kanalizacja miejska

Pomieszczenia

Powierzchnia pokoi 96,8 m2
Podłogi pokoi wylewka
Typ kuchni widna
Rodzaj kuchni aneks kuchenny - połączony z salonem
Podłoga kuchni wylewka
Typ łazienki razem z wc
Liczba łazienek 1
Powierzchnia łazienki 8,6 m2
Glazura łazienki bez glazury
Podłoga łazienki wylewka
Liczba WC 1
Powierzchnia WC 3,1 m2
Glazura WC bez glazury
Podłoga WC wylewka
Liczba przedpokoi 2
Powierzchnia przedpokoi 15,6 m2
Podłoga przedpokoi wylewka

Lokalizacja

Kalkulator kredytowy

PLN
%
Wysokość raty

Kalkulator kosztów

PLN
PLN
PLN
PLN
PLN
PLN
%
PLN
Podatek od czynności cywilno-prawnych
Taksa notarialna (opłata notarialna)
VAT od taksy notarialnej (opłaty notarialnej)
Wniosek do WKW
VAT od wniosku do WKW
Prowizja agencji nieruchomości
VAT od prowizji agencji nieruchomości
Wypisy aktu notarialnego - około
RAZEM (cena + opłaty)

Podobne oferty

rezerwacja
video
dom na sprzedaż - Tychy, Mąkołowiec

dom na sprzedaż

Tychy, Mąkołowiec
4 pokoje 108,90 m2 8 815,43 zł/m2
video
dom na sprzedaż - Tychy, Mąkołowiec

dom na sprzedaż

Tychy, Mąkołowiec
4 pokoje 108,90 m2 8 815,43 zł/m2
rezerwacja
video
dom na sprzedaż - Tychy, Czułów

dom na sprzedaż

Tychy, Czułów
5 pokoi 157,37 m2 6 989,90 zł/m2
oferta specjalna
video
dom na sprzedaż - Tychy, Wilkowyje

dom na sprzedaż

Tychy, Wilkowyje
4 pokoje 74,60 m2 8 699,73 zł/m2

Napisz do nas

Proszę wypełnić to pole
Proszę wypełnić to pole
Proszę wypełnić to pole
Proszę wypełnić to pole
Trwa wysyłanie...

Ta strona wykorzystuje pliki cookies w celach statystycznych oraz w celu dostosowania naszych serwisów do indywidualnych potrzeb klientów. Zmiany ustawień dotyczących plików cookie można dokonać w dowolnej chwili modyfikując ustawienia przeglądarki. Korzystanie z tej strony bez zmian ustawień dotyczących cookies oznacza, że będą one zapisane w pamięci urządzenia.

rozumiem