Tychy, Urbanowice

Dom na sprzedaż

Opis nieruchomości

URBANOWICE, UL. OŚWIĘCIMSKA
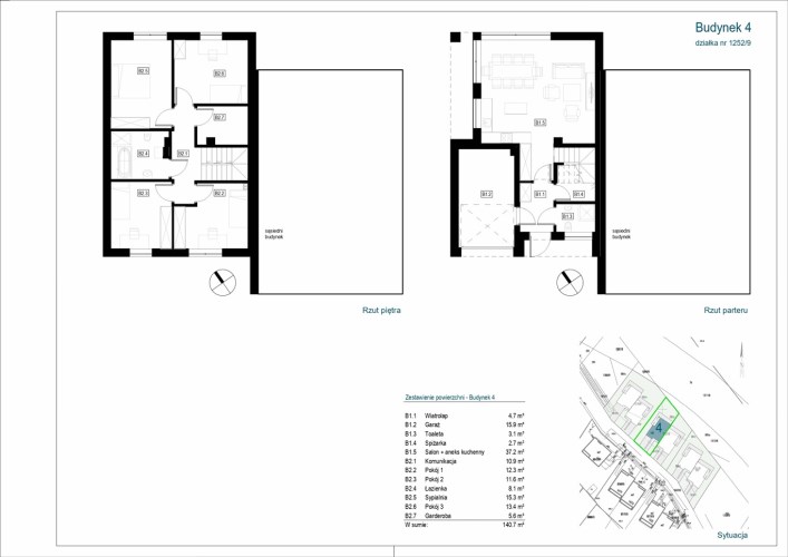
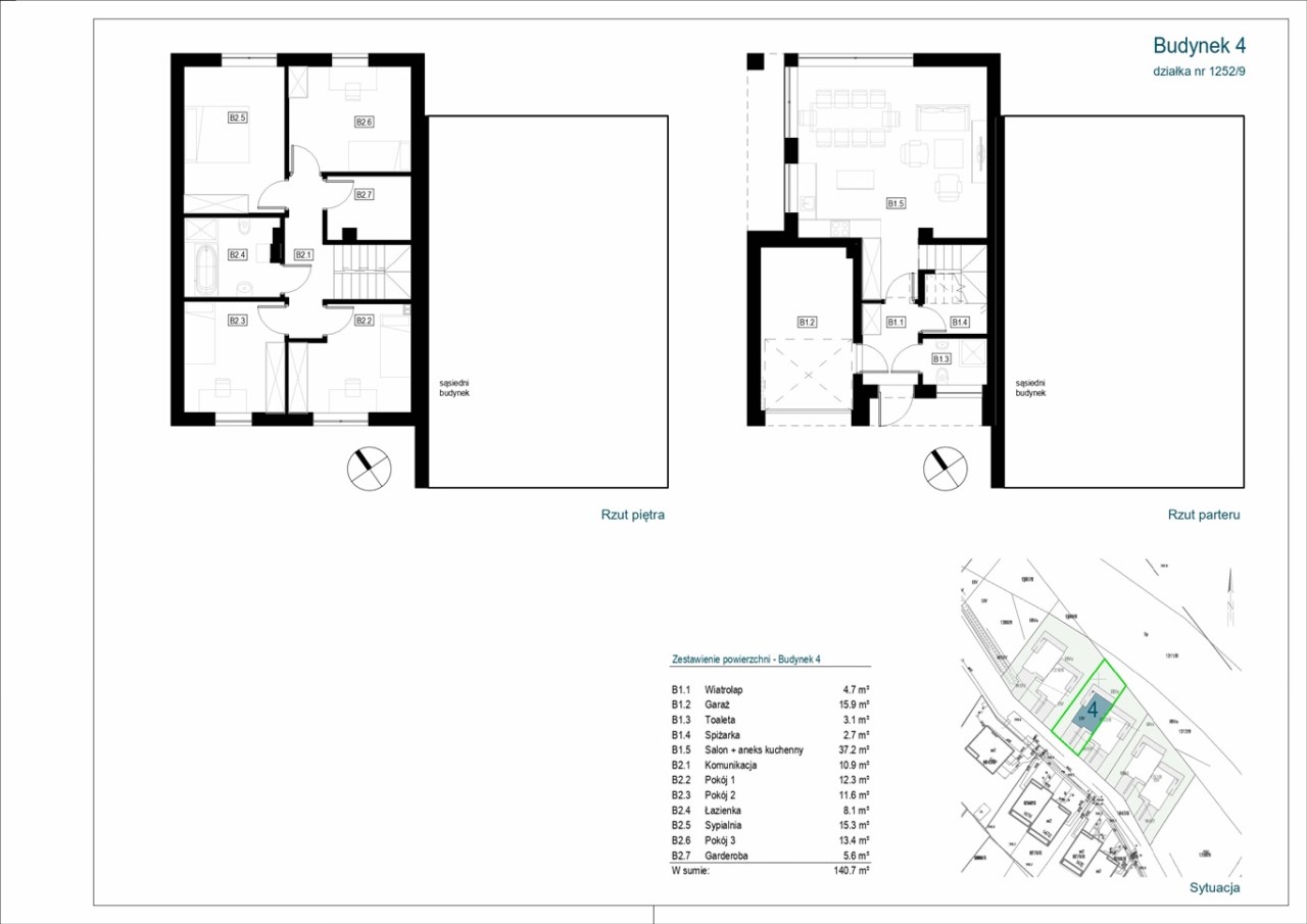
BUDYNEK 4


 


Szukasz nowego domu dla rodziny w spokojnej okolicy, ale z wygodnym dojazdem do miasta?

 

Ten nowoczesny bliźniak o powierzchni 141 m² z garażem w bryle budynku i własnym ogrodem może być idealnym rozwiązaniem.

Nieruchomość znajduje się w Tychach – Urbanowicach przy ul. Oświęcimskiej, w otoczeniu niskiej zabudowy jednorodzinnej i dużej ilości zieleni. Lokalizacja zapewnia jednocześnie bardzo dobrą komunikację – do ul. Beskidzkiej dotrzesz w około 3 minuty, co pozwala na szybki dojazd do centrum miasta oraz głównych tras w kierunku Katowic i Bielska-Białej.

Dom oferowany jest w stanie deweloperskim, dzięki czemu przyszli właściciele mogą wykończyć wnętrza zgodnie z własnym stylem i potrzebami.



Parter – komfortowa przestrzeń dzienna

Na parterze zaplanowano funkcjonalną strefę wspólną dla domowników:
 

• przestronny salon z aneksem kuchennym, który stanowi centralny punkt domu

spiżarnię, zapewniającą dodatkowe miejsce do przechowywania


toaletę dla gości


wiatrołap, oddzielający strefę wejściową od części mieszkalnej


garaż w bryle budynku

 

Duże przeszklenia w części dziennej zapewniają dobre doświetlenie wnętrza oraz wyjście do ogrodu, który może stać się prywatną strefą relaksu.



Piętro – prywatna strefa domowników

Na piętrze znajdują się:

sypialnia główna

• trzy dodatkowe pokoje – idealne dla dzieci, gości lub jako gabinet


osobna garderoba


łazienka dla domowników

Dodatkowym atutem jest wysoki, przestronny strych, który sprawdzi się jako przestrzeń do przechowywania.

 


Najważniejsze atuty nieruchomości

 

• spokojna, zielona okolica

• nowoczesny projekt domu

• garaż w bryle budynku

• ogród przy domu

• funkcjonalny układ pomieszczeń

• szybki dojazd do centrum miasta

• możliwość wykończenia wnętrz według własnego projektu

 


Rozkład pomieszczeń

Parter (63,9 m²):

  • Wiatrołap – 4,7 m²

  • Salon z aneksem kuchennym – 36,4 m²

  • Spiżarnia – 2,8 m²

  • Toaleta – 3,1 m²

  • Garaż – 16,9 m²

Piętro (77,1 m²):

  • Sypialnia główna – 15,2 m²

  • Pokój – 12,3 m²

  • Pokój – 12,3 m²

  • Pokój  – 12,2 m²

  • Łazienka – 8,6 m²
  • Garderoba - 5,6 m²
  • Przedpokój - 10,9 m²

Ten dom trzeba zobaczyć na żywo, aby w pełni poczuć jego potencjał i klimat okolicy.

Deweloper oferuje możliwość wykończenia nieruchomości do standardu „pod klucz”, zgodnie z preferencjami nabywcy (opcja dodatkowo płatna).

W ofercie dostępnych jest kilka segmentów z tej inwestycji – zapraszam do kontaktu w celu poznania szczegółów oraz umówienia prezentacji.

Zadzwoń i umów się na prezentację – przekonaj się, czy to właśnie tutaj powstanie Twój nowy dom! 

Agent prowadzący :
Amanda Smołuch
t: +48 572 190 490
@: asmoluch@mojem.com.pl

Nota prawna

Opis oferty zawarty na stronie internetowej sporządzany jest na podstawie oględzin nieruchomości oraz informacji uzyskanych od właściciela, może podlegać aktualizacji i nie stanowi oferty określonej w art. 66 i następnych K.C.

Szczegóły oferty

Symbol oferty MMN-DS-7416
Powierzchnia 182,30 m²
Powierzchnia użytkowa 141,00 m²
Powierzchnia działki 319 m²
Liczba pokoi 5
Rodzaj domu bliźniak
Technologia budowlana beton, cegła, pustak
Liczba pięter w budynku 2
Garaż w budynku
Okna nowe PCV
Instalacje nowe
Balkon brak
Liczba tarasów 2
Ukształtowanie działki płaska
Kształt działki prostokąt
Pokrycie dachu blachodachówka
Stan budynku do wykończenia
Ogrodzenie działki siatka
Gaz jest
Woda ciepła z pieca CO
Dojazd droga utwardzona
Otoczenie działki niezabudowane
Ogrzewanie własne gazowe - kocioł 2-funkcyjny
Prąd jest
Kanalizacja miejska

Pomieszczenia

Powierzchnia pokoi 96,8 m2
Podłogi pokoi wylewka
Typ kuchni widna
Rodzaj kuchni aneks kuchenny - połączony z salonem
Podłoga kuchni wylewka
Typ łazienki razem z wc
Liczba łazienek 1
Powierzchnia łazienki 8,6 m2
Glazura łazienki bez glazury
Podłoga łazienki wylewka
Liczba WC 1
Powierzchnia WC 3,1 m2
Glazura WC bez glazury
Podłoga WC wylewka
Liczba przedpokoi 2
Powierzchnia przedpokoi 15,6 m2
Podłoga przedpokoi wylewka

Lokalizacja

Kalkulator kredytowy

PLN
%
Wysokość raty

Kalkulator kosztów

PLN
PLN
PLN
PLN
PLN
PLN
%
PLN
Podatek od czynności cywilno-prawnych
Taksa notarialna (opłata notarialna)
VAT od taksy notarialnej (opłaty notarialnej)
Wniosek do WKW
VAT od wniosku do WKW
Prowizja agencji nieruchomości
VAT od prowizji agencji nieruchomości
Wypisy aktu notarialnego - około
RAZEM (cena + opłaty)

Podobne oferty

rezerwacja
video
dom na sprzedaż - Tychy, Mąkołowiec

dom na sprzedaż

Tychy, Mąkołowiec
4 pokoje 108,90 m2 8 815,43 zł/m2
video
dom na sprzedaż - Tychy, Mąkołowiec

dom na sprzedaż

Tychy, Mąkołowiec
4 pokoje 108,90 m2 8 815,43 zł/m2
rezerwacja
video
dom na sprzedaż - Tychy, Czułów

dom na sprzedaż

Tychy, Czułów
5 pokoi 157,37 m2 6 989,90 zł/m2
nowa oferta
dom na sprzedaż - Tychy, Urbanowice

dom na sprzedaż

Tychy, Urbanowice
5 pokoi 182,30 m2 4 931,43 zł/m2

Napisz do nas

Proszę wypełnić to pole
Proszę wypełnić to pole
Proszę wypełnić to pole
Proszę wypełnić to pole
Trwa wysyłanie...

Ta strona wykorzystuje pliki cookies w celach statystycznych oraz w celu dostosowania naszych serwisów do indywidualnych potrzeb klientów. Zmiany ustawień dotyczących plików cookie można dokonać w dowolnej chwili modyfikując ustawienia przeglądarki. Korzystanie z tej strony bez zmian ustawień dotyczących cookies oznacza, że będą one zapisane w pamięci urządzenia.

rozumiem