Dwupokojowe mieszkanie z ogromnym potencjałem aranżacyjnym
/ ul. Przemysłowa – Tychy
Dwupokojowe mieszkanie o powierzchni użytkowej 29,50 m², położone na 4. piętrze budynku – ostatnim piętrze ze skosami. Skosy obecne w całym mieszkaniu tworzą niepowtarzalny klimat wnętrza i stanowią ciekawy punkt wyjścia do zaprojektowania funkcjonalnej, nowoczesnej przestrzeni.
Nieruchomość znajduje się przy ul. Przemysłowej 40 w Tychach, w dobrze skomunikowanej i rozwiniętej części miasta. W najbliższym sąsiedztwie dostępna jest pełna infrastruktura: sklepy, punkty usługowe, szkoły, przystanki komunikacji miejskiej oraz wygodne połączenia z pozostałymi dzielnicami miasta. Dodatkowym atutem lokalizacji jest bliskość Tyskiej Strefy Ekonomicznej, co generuje duże zapotrzebowanie na najem i czyni ofertę szczególnie atrakcyjną inwestycyjnie.
Budynek przy ul. Przemysłowej 40 to niska, czteropiętrowa zabudowa wielorodzinna, murowana z cegły, co zapewnia trwałość i dobrą izolację termiczną. Elewacja utrzymana jest w stonowanej, estetycznej kolorystyce, nadając całemu obiektowi schludny i ponadczasowy wygląd.
Teren wokół bloku jest zagospodarowany i zadbany, z dojściami pieszymi oraz ogólnodostępnymi miejscami parkingowymi dla mieszkańców. Wejście do budynku zabezpieczone jest sprawnym domofonem, co zwiększa komfort i poczucie bezpieczeństwa. Klatka schodowa jest utrzymana w dobrym stanie, co świadczy o dbałości o części wspólne i sprzyja przyjaznej atmosferze w budynku.
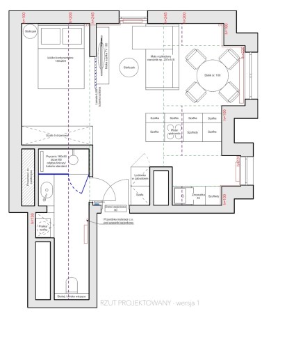
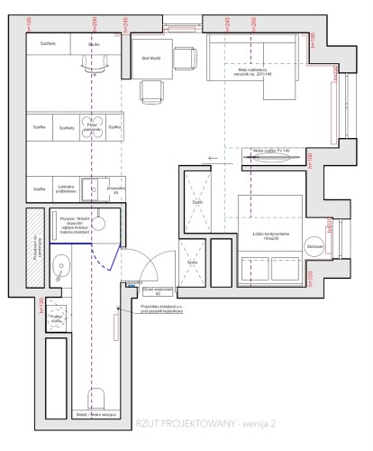
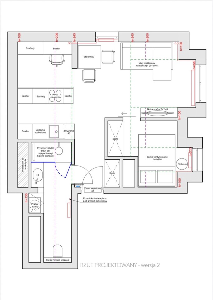
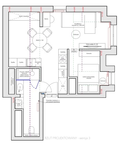
Mieszkanie składa się z dwóch pokoi, oddzielnej kuchni, łazienki z WC oraz przedpokoju. Układ lokalu daje szerokie możliwości zmiany funkcji pomieszczeń, w tym:
połączenia kuchni z jednym z pokoi i stworzenia komfortowej strefy dziennej,
wydzielenia sypialni oraz pokoju do pracy lub pokoju gościnnego,
aranżacji mieszkania pod najem krótko- lub długoterminowy,
maksymalnego wykorzystania przestrzeni pod skosami poprzez zabudowy na wymiar.
Lokal jest do remontu, co pozwala przyszłemu właścicielowi na pełną swobodę aranżacyjną i realizację własnej wizji wnętrza.
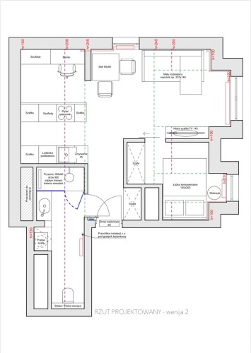
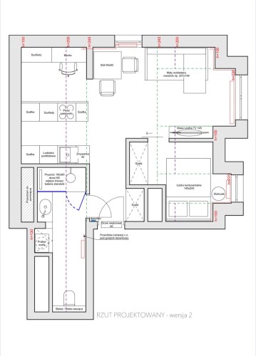
Dla lepszego zobrazowania potencjału nieruchomości w zdjęciach oferty dołączono przykładową wizualizację oraz trzy różne rzuty prezentujące możliwe konfiguracje zmiany układu mieszkania.
Koszty eksploatacyjne to czynsz w wysokości ok. 370 zł.
Oferta idealna dla singla, pary lub inwestora, poszukujących mieszkania z charakterem, elastycznym układem i dużym potencjałem wynajmu.
Wszelkie warunki transakcji do uzgodnienia. Wszystkich chcących poznać bliżej standard oferty zapraszam do bezpośredniego kontaktu.



